科二坡道定点停车和起步可以作弊!你造吗?...

<p>坡道定点停车对于学员来说,想要保证不熄火、不后溜就已经很不容易了,还要保证停车到位,那就需要一些作弊点啦~</p><p><strong>上坡中<...


♨【技巧】直角转弯看点技巧...

<p><span ><strong ><span >学车开车技巧</span></strong><span ><strong >:</strong><...


坡道定点停车与起步操作技巧 看完不信你还...

<p>坡道定点停车和起步一直被很多学员视为科目二考试中最难的一项,因为坡上一不小心就熄火了,停车稍有不慎就溜车了,学员该怎么做才能顺利通过呢?</p>...


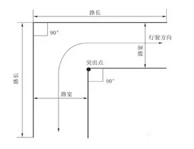
♨直角转弯方向盘怎么打...

<p><span >直角转弯相对其他项目来说比较简单,需要操作方向盘的地方也只有两点:一个是右打死方向盘,一个就是回正方向盘,最重要的就是看准点打方向...


坡道定点停车起步有那么难么?看完就学会!...

<p><span>这个项目主要是考察学员在坡道控制车辆位置和平稳起步的能力。</span></p><p><br /></p><p><img src="...


【科目二】 直角转弯 通过技巧...

<p><span >一、 </span><strong><span ><span >操作要求</span></span></strong></p><p...


相关推荐


超车只是踩油门?可没有那...|考试技巧

超车只是踩油门?可没有那么简单<p><span>对于驾驶年龄长的...[详细]

125所驾校启动人脸识别...|考试技巧

125所驾校启动人脸识别系统,教练学员隔10分钟刷一次脸<p>前...[详细]

科目一、科目三新增考试内...|考试技巧

科目一、科目三新增考试内容,还没考试的学员请注意!<p>6月30...[详细]

相关视频


趣味讲解.机动车行驶限速...

科目一是交通法规及相关知识考试,不少学员会问...

趣味讲解.喇叭的使用...

科目一是交通法规及相关知识考试,不少学员会问...

趣味讲解.按交通信号通行...

科目一是交通法规及相关知识考试,不少学员会问...